Get Permit-Approved Floor Plans Anywhere in the U.S.
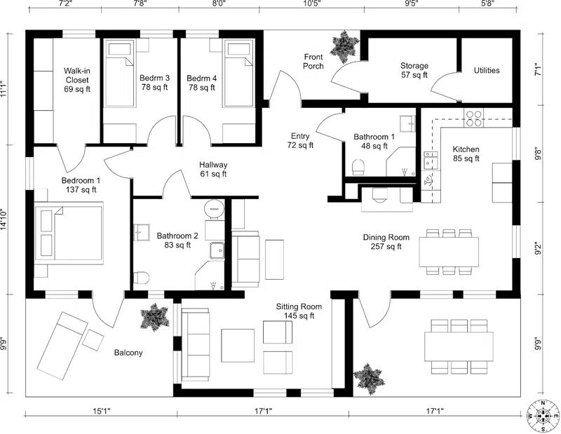
Pro Site Plans focuses purely on 2D floor plans. Interior layouts only. Walls, rooms, doors, windows, dimensions. Nothing outside the building. No site or plot elements mixed in. Just clean, accurate floor plans designed to meet U.S. permit standards and still look sharp.
Fast and Permit-Ready
Get Floor Plan for Permit
We design with two audiences in mind. Permit offices need clarity. Homeowners and builders need confidence. So, we balance both. Logical layouts. Proper room labeling. Clear measurements. Plans that read fast and make sense at a glance. The kind inspectors see every day and approve without friction.
What you get
➡️ Permit-ready floor plans drawn to scale
➡️ Rooms, walls, doors, windows interior elements. Nothing missing
➡️ Clean layouts that reviewers understand fast
➡️ 2 D rendering upon request
Why it works
➡️ Built for local codes and real checks
➡️ Reduces back and forth. Saves weeks
➡️ Used daily by homeowners, builders, investors
You send rough sketch. We turn it into authority on paper. Simple plans. Real approvals. Faster builds.
Professional Floor Plans Built for Real Permits
You can start with a sketch, notes, or an existing layout that needs fixing. We translate it into a professional floor plan that aligns with local building requirements across cities and counties nationwide. Simple inputs. Strong output.
This is where leverage shows up. Fewer questions. Fewer revisions. Faster permits. Better decisions before construction starts. We draft floor plans every day for real U.S. projects. Residential. Remodels. Additions. New builds. Unlimited revisions until it is right.
Built specifically for permit review, not just visuals
Aligned with real U.S. zoning and building workflows
Clean layouts that reduce reviewer questions
Practical drawings contractors can actually build from
Designed to prevent delays before construction starts
Read our Reviews
EXCELLENT Based on 11 reviews Posted on Fazel BaniasadiTrustindex verifies that the original source of the review is Google. Posted on OscarTrustindex verifies that the original source of the review is Google. I have used pro site plans for many of my projects, and I’ve never been so satisfied with their professionalism And quality draftsmanship. The timing when it comes to completing the work I order is incredible. I will continue to use pro site plans for my projects and I highly recommend their service.Posted on Terry HTrustindex verifies that the original source of the review is Google. Pro Site Plans is nothing short of amazing! They managed to take a rough draft, amateur floor plan and site plan that I prepared and used them to create a professional floor plan and site plan, which included measurements, exits, parking spaces, etc. They worked with me until everything was perfect and they did this all remotely. The best part is that they charged only a fraction of what the average local CADs, architects, engineers and surveyors cost. I highly recommend them. They really are phenomenal.Posted on Pablo PesantezTrustindex verifies that the original source of the review is Google. Excellent product and excellent customer service I’m fully recommendedPosted on Rita BakerTrustindex verifies that the original source of the review is Google. I was in need of a detailed Site Plan that satisfied the Zoning & Planning review board to open a dog sitting business. Site Plan exceeded my expectations!! Detailed, professional, along with the best customer service and support!!!! Anyone looking for this type of service- search no more!! Site Plan is your Go To!!!Posted on Minerva GonzalezTrustindex verifies that the original source of the review is Google. The process was very easy. Pro Site Communication was a 5 star. Turn around was very fast. So far have given them 2 projects and I am pleased with both. Referring them out to all of my other colleages in the business.Posted on Darrell MartinTrustindex verifies that the original source of the review is Google. Tremendous service. This service helped me get the permit I needed to start my home renovations.Posted on orlette sanchoTrustindex verifies that the original source of the review is Google. This company is awesome; very reliable; received project in time stated; very professional; all adjustments were done in a timely manner; would highly recommendPosted on Crystal TungTrustindex verifies that the original source of the review is Google. Fast turnaround, and plans turned out exactly how we wanted it. Thanks.Posted on Joey AguiarTrustindex verifies that the original source of the review is Google. Great experience with great turnaround time. Highly recommend.
Choose the Best Floor Plan Package for Fast City Permit Approval
Basic Floor Plan
- Detailed Layouts
- Furniture Placement Suggestions
- Walls, Windows, Doors, & Staircases
- Fixture Details
- Precision
Delivered Site Plans
0
+
Satisfied Clients
0
+
Repeat Clients
0
+
Five-Star Reviews
0
+
Team Members
0
We’re known for responsive, reliable support get answers fast from our U.S.-based drafting specialists.
Contact Us
If you have questions or need assistance, we’re just a click away! With swift responses via phone, email, or live chat, we’re here to assist you!
Send A Message To get Custom Offer
What Our Clients Are Saying
Anna P.
Professional, fast, and courteous. The site plan was detailed and helped us move forward with our landscaping project
Phoenix, Arizona
Heather J.
Absolutely satisfied with their service! The site plan was clear, and they even included suggestions for improvements.
Portland, Oregon
Mark S.
Their team is knowledgeable and efficient. Got my site plan faster than I expected and it was spot on!
Atlanta, Georgia
Linda G.
I was amazed at how quickly they delivered such a detailed and precise site plan. Perfect for my permit application!
New York, New York